大阪市のタワーマンション > (マンション(売買))路線・駅から探す > 大阪メトロ地下鉄御堂筋線 > 天王寺駅 > リバーガーデン四天王寺

リバーガーデン四天王寺売り出し中2エリアから探す >

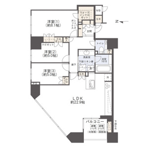
【居間・リビング】 | 【リビングダイニング】約22.9帖のLDK!おしゃれで明るい空間です。オープンなキッチンも魅力です!
【居間・リビング】 | 【リビングダイニング】大きな窓からたくさんの陽が差し込み、お部屋全体がとても明るく、暖かみある空間◎
【居間・リビング】 | 【リビングダイニング】北西角のFIX窓が開放的なLDKです◎
【居間・リビング】 | 【リビングダイニング】キッチン横にバルコニーがあり、風通しが良く、換気もラクラク!
【居間・リビング】 | 【リビングダイニング】床暖房完備で冬でも足元あたたかいです☆
【キッチン】 | 【キッチン】浄水器、ディスポーザー、食洗器付で家事負担軽減に役立ちます◎
【キッチン】 | 【キッチン】開放的なキッチンです!スタイリッシュなビルトインコンロ。ダウンライトで穏やかな雰囲気!
【キッチン】 | 【キッチン】調理の作業スペースや収納もたっぷり。家電も並べて置けます。
【キッチン】 | 【キッチン】三口ガスコンロでお料理の効率アップ!もちろんグリルもついています!
【洋室】 | 【洋室②】約5帖。落ち着いた色調の洋室です。クローゼット付き!
【展望】 | 【物件からの眺望】6階ながら抜け感あり。前面が道路なので、隣の建物とも距離があります。
【洋室】 | 【洋室③】約5帖。コンパクトで使いやすい洋室です!クローゼット付き!
【独立洗面台】 | 【独立洗面台】おしゃれな洗面台です!三面鏡裏、カウンター下、リネン庫など収納スペース多数!
【独立洗面台】 | 【洗面室】木のぬくもりを感じられる、穏やかな内装です。収納も充実!
【設備】 | 【洗面室】ガス衣類乾燥機 乾太くんです!天候に左右されずにお洗濯が可能です!
【トイレ】 | 【トイレ】スタイリッシュなタンクレストイレ!物入も壁に埋めこまれているので、すっきりとした空間です!
【浴室】 | 【浴室】ゆとりある1618サイズのお風呂!オートバスで、お湯はり・追い炊きもワンタッチ!
【玄関】 | 【玄関】大きなシューズボックス付きです!タイル貼りの床などグレード感ある内装です!
【収納】 | 【専用トランクルーム】自転車も入るサイズの大きな収納です!住戸と同じ6階にございます!
【ロビー】 | 【コミュニティラウンジ】第二のリビングとして、ゆったりとお過ごしいただけます。
【ロビー】 | 【コミュニティラウンジ】第二のリビングとして、ゆったりとお過ごしいただけます。
【ロビー】 | 【ラウンジ】選び抜かれた、シックで落ち着きある家具を備えたラウンジスペース。
【エントランス】 | 【エントランスホール】陽光に照らされて輝く四季のパラノマ。迎賓の趣を醸し出すエントランス。
【外観】 | 【外観】地上45mの大規模壁面緑化!エリア最大・最高層の大規模レジデンス!

上町台地のヒルトップエリア。
四天王寺のそばの、ひときわ静かな地区で
最大・最高層のレジデンスです。

所在地
大阪府大阪市天王寺区大道2丁目9
専有面積
-
築年月(築年数)
2025年 11月( 新築 )
階建
20階建 地下1階
総戸数
200戸
交通
地下鉄御堂筋線天王寺」駅 徒歩10分
大阪環状線寺田町」駅 徒歩10分
大阪環状線天王寺」駅 徒歩11分
事業主
リバー産業(株)
管理会社
株式会社浪速管理
施工会社
リバー建設(株)

サービス・設備仕様

  • ディスポーザー
    料理中に出る生ゴミを粉砕する機械。衛生的でクリーンなキッチンを維持できます。
  • 床暖房
    足元から室内や体を温めます。空気を汚さずクリーンなのもうれしい。
  • ミストサウナ
    雨の日も洗濯物が乾かせたり、自宅でサウナを楽しめます。
  • 複層ガラス
    結露を防ぐことができます。又、冷暖房の効率を高め断熱・省エネに貢献。
  • スロップシンク
    バルコニーに設置されたシンク。ガーデニングや泥のついたものを洗う際に便利。
  • トランクルーム
    不要な家財、季節ものなどを保管しておけます。
  • オール電化
    生活に必要不可欠な熱エネルギーすべてを電気でまかなう「オール電化」。キッチンや暖房、給湯で火を使わないため安全性が高まります。
  • コンシェルジュ
    ホテルのフロントのように各種業者の紹介や共用施設の予約など、住まう方の上質な暮らしをサポートします。
  • 24時間有人管理
    管理員やコンシェルジュ、警備員などが一日中マンション内に常駐。人の目で警備や管理を行う為より安心です。
  • 宅配BOX
    外出時に届いた荷物を、24時間受け取ることができます。
  • ゴミステーション
    各フロアにゴミを出せるゴミステーションを設置。ゴミ収集場所まで持ち運ぶ手間を解消。
  • SOHO利用可能
    事務所兼用可能なマンションです。※Small Office Home Officeの頭文字。
  • 内廊下仕様
    ホテルのように廊下が屋外に面していません。セキュリティーにも優れ、プライバシーも守られます。
  • エレベーター
    セキュリティ
    玄関キーをかざさないとエレベーターが動かないシステムを採用。
  • スカイラウンジ
    眺望の良い高層階から優雅な時間を過ごすことができるスカイラウンジ。
  • ゲストルーム
    遊びに来た親族や知人の宿泊など、幅広く活用できます。
  • パーティルーム
    様々な集いに便利なスペース。気軽なホームパーティーやゲストを招いてのお洒落なイベントなど。
  • フィットネスジム
    気持ちよく体を動かせるスポーツ&リラクゼーション空間。外出することなくマンション内でフィットネスを愉しむことができます。
  • ゴルフレンジ
    ラウンドを楽しめるゴルフシュミレーターを完備。リアル感に満ちたプレーをマンション内で堪能できます。
  • キッズルーム
    小さなお子様が元気に遊べるお部屋です。雨の日に重宝します。
  • ペット用施設あり
    ペットの足を洗ったり、毛づくろいができます。

スタッフからの追加情報

-構 造-
 リバー建設施工の20階建て板状マンション

-共用施設-
 【エントランスホール/ロビー】
 【コミュニティラウンジ】

現在売出中の物件

1億580万円

3LDK+1S(納戸)

詳細を見る

1億4,180万円

3LDK

詳細を見る

会員登録

TOWERZ会員様限定!賢く選ぶ為のつの特典

「未公開物件速報」をお知らせ
空室が出た際、ポータルサイト登録前の状態で会員様に向けて優先的に情報を発信。
具体的な検討候補物件がある場合には、また人気の高い物件は情報公開後、すぐにご成約に至ることも珍しくありません。
条件の良い物件を探したい方には、ぜひご登録をお勧めしております。
相場を知り、適正価格を知る
TOWERZでは、市内の全タワーマンションの退去の取引事例を詳細に分析。
一般の方では入手が難しい情報を、物件ごとに取りまとめて皆様に公開しております。会員様にはご関心をお持ちいただいた物件に対する分析資料をお送りしております。
また、これらのデータ解析をもとに独自に作成したタワーマンションランキングなどもご提供。
詳細な資料をお届け
今では入手が難しい、新築販売当時のパンフレットを所有。物件送付資料に、パンフレットの一部を抜粋し同封させていただきます。

タワーマンションを賢く買う為の「TOWERZ会員登録」はコチラ!! >

「リバーガーデン四天王寺」の売却相談

「リバーガーデン四天王寺」の売却なら、TOWERZを運営する「ES&Company」にお任せください!

TOWERZは大阪市内のタワーマンションに特化した不動産の売買を専門としています。
タワーマンションを購入したいという独自の会員登録も多数いるため、条件が合えば即マッチングも可能です。
アンケート調査では弊社を利用した90%以上が「次回もまた利用したい」とお答えいただけることからもわかるように、経験方法なスタッフが高いホスピタリティを追求して皆様の満足を追求いたします。

売却査定依頼

リバーガーデン四天王寺へのお問い合わせ 空室がでた際にご連絡もさせていただきます。

リバーガーデン四天王寺へのお問い合わせ

必要項目の入力

0/0
必須項目完了

確認画面へ
お進み下さい

0/0
必須項目完了

確認画面へ
お進み下さい

必須

お名前

必須

電話番号

必須

メールアドレス

任意

現在のお住まい

任意

内容

【リバーガーデン四天王寺へのお問い合わせ】

利用規約及びプライバシーポリシーを必ずお読みください。左記内容に同意いただいた場合は、確認画面へお進み下さい。

未入力項目があります

※地図上に表示される物件の位置は付近住所に所在することを表すものであり、実際の物件所在地とは異なる場合がございます。

閉じる

トップへ戻る