大阪市のタワーマンション > (マンション(売買))路線・駅から探す > 近畿日本鉄道近鉄大阪線 > 大阪上本町駅 > ピアッツァタワー上本町EAST

ピアッツァタワー上本町EAST売り出し中1エリアから探す >

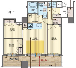
【居間・リビング】 | 【リビングダイニング】LDK約16帖!吊戸棚なしのため開放感のあるリビング!
【外観】 | 【外観】大阪上本町徒歩4分の161戸免震構造タワー☆
【キッチン】 | 【キッチン】2.4mのキッチン!調理スペース豊富♪
【キッチン】 | 【キッチン】カップボード付きで収納豊富♪
【洋室】 | 【洋室】23階で眺望良好♪クローゼット付き!
【洋室】 | 【洋室】約7.2帖の洋室!WIC付き!
【洋室】 | 【洋室】眺望・採光良好の約5.0帖の洋室!クローゼット付き!
【トイレ】 | 【トイレ】お掃除しやすい防水のビニル床タイル!
【浴室】 | 【風呂】白基調で日々の疲れが癒されるデザイン♪
【独立洗面台】 | 【洗面台】収納豊富な独立洗面台!
【玄関】 | 【玄関】明るい雰囲気の玄関!全身鏡付き!
【玄関】 | 【玄関】シューズボックス付き!
【バルコニー】 | 【バルコニー】1.9mの広々バルコニー!23階で眺望良好♪
【収納】 | 【トランクルーム】独立トランクルーム付き♪
【展望】 | 【物件からの眺望】高層階23階東向きで眺望良好◎
【その他共用部分】 | 【エントランスホール】シックなデザイン開放感のあるエントランスホール◎

□ 駅まで4分&2WAYアクセス!
  梅田・なんば・天王寺などの
  主要エリアへ軽快にアクセス。

□ ショッピングセンター、百貨店などの
  お買い物施設や、有名病院、大型公園、
  学校も多く集まるエリア!!
  利便性・自然・安心感。
  すべてに満たされる豊かな日々。

所在地
大阪府大阪市天王寺区東高津町8-18
専有面積
51.76㎡~140.52㎡
築年月(築年数)
2021年 6月( 築4年 )
階建
30階建
総戸数
161戸
交通
近鉄大阪線大阪上本町」駅 徒歩4分
地下鉄谷町線谷町九丁目」駅 徒歩5分
大阪環状線鶴橋」駅 徒歩11分
事業主
(株)フクダ不動産
管理会社
ピアッツァ・コミュニティ(株)
施工会社
(株)ナカノフドー建設大阪支社

サービス・設備仕様

  • ディスポーザー
    料理中に出る生ゴミを粉砕する機械。衛生的でクリーンなキッチンを維持できます。
  • 床暖房
    足元から室内や体を温めます。空気を汚さずクリーンなのもうれしい。
  • ミストサウナ
    雨の日も洗濯物が乾かせたり、自宅でサウナを楽しめます。
  • 複層ガラス
    結露を防ぐことができます。又、冷暖房の効率を高め断熱・省エネに貢献。
  • スロップシンク
    バルコニーに設置されたシンク。ガーデニングや泥のついたものを洗う際に便利。
  • トランクルーム
    不要な家財、季節ものなどを保管しておけます。
  • オール電化
    生活に必要不可欠な熱エネルギーすべてを電気でまかなう「オール電化」。キッチンや暖房、給湯で火を使わないため安全性が高まります。
  • コンシェルジュ
    ホテルのフロントのように各種業者の紹介や共用施設の予約など、住まう方の上質な暮らしをサポートします。
  • 24時間有人管理
    管理員やコンシェルジュ、警備員などが一日中マンション内に常駐。人の目で警備や管理を行う為より安心です。
  • 宅配BOX
    外出時に届いた荷物を、24時間受け取ることができます。
  • ゴミステーション
    各フロアにゴミを出せるゴミステーションを設置。ゴミ収集場所まで持ち運ぶ手間を解消。
  • SOHO利用可能
    事務所兼用可能なマンションです。※Small Office Home Officeの頭文字。
  • 内廊下仕様
    ホテルのように廊下が屋外に面していません。セキュリティーにも優れ、プライバシーも守られます。
  • エレベーター
    セキュリティ
    玄関キーをかざさないとエレベーターが動かないシステムを採用。
  • スカイラウンジ
    眺望の良い高層階から優雅な時間を過ごすことができるスカイラウンジ。
  • ゲストルーム
    遊びに来た親族や知人の宿泊など、幅広く活用できます。
  • パーティルーム
    様々な集いに便利なスペース。気軽なホームパーティーやゲストを招いてのお洒落なイベントなど。
  • フィットネスジム
    気持ちよく体を動かせるスポーツ&リラクゼーション空間。外出することなくマンション内でフィットネスを愉しむことができます。
  • ゴルフレンジ
    ラウンドを楽しめるゴルフシュミレーターを完備。リアル感に満ちたプレーをマンション内で堪能できます。
  • キッズルーム
    小さなお子様が元気に遊べるお部屋です。雨の日に重宝します。
  • ペット用施設あり
    ペットの足を洗ったり、毛づくろいができます。

スタッフからの追加情報

-構 造-
 ナカノフドー建設施工の免震構造タワーマンション


-共用施設-
◇1F
 【プレイロット】
   緑豊かな植栽に囲まれた広場です。
 【エントランスホール】
   伸びやかな二層吹き抜け。
   三面にわたるガラスウォール。
   開放感あふれる大空間です。
 【エレベーターホール】
   エレベーターを3基設置。
   空間の広がりとグレード感を演出する折上天井や
   間接照明によって、落ち着いた雰囲気に。
 【ペット足洗い場】
   お出かけの後、きれいになってお部屋に戻れます。

◇3F
 【集会室】
   管理組合の集会をはじめ、
   様々な集まりに利用可能です。

現在売出中の物件

1億2,900万円

3LDK

詳細を見る

会員登録

TOWERZ会員様限定!賢く選ぶ為のつの特典

「未公開物件速報」をお知らせ
空室が出た際、ポータルサイト登録前の状態で会員様に向けて優先的に情報を発信。
具体的な検討候補物件がある場合には、また人気の高い物件は情報公開後、すぐにご成約に至ることも珍しくありません。
条件の良い物件を探したい方には、ぜひご登録をお勧めしております。
相場を知り、適正価格を知る
TOWERZでは、市内の全タワーマンションの退去の取引事例を詳細に分析。
一般の方では入手が難しい情報を、物件ごとに取りまとめて皆様に公開しております。会員様にはご関心をお持ちいただいた物件に対する分析資料をお送りしております。
また、これらのデータ解析をもとに独自に作成したタワーマンションランキングなどもご提供。
詳細な資料をお届け
今では入手が難しい、新築販売当時のパンフレットを所有。物件送付資料に、パンフレットの一部を抜粋し同封させていただきます。

タワーマンションを賢く買う為の「TOWERZ会員登録」はコチラ!! >

「ピアッツァタワー上本町EAST」の売却相談

「ピアッツァタワー上本町EAST」の売却なら、TOWERZを運営する「ES&Company」にお任せください!

TOWERZは大阪市内のタワーマンションに特化した不動産の売買を専門としています。
タワーマンションを購入したいという独自の会員登録も多数いるため、条件が合えば即マッチングも可能です。
アンケート調査では弊社を利用した90%以上が「次回もまた利用したい」とお答えいただけることからもわかるように、経験方法なスタッフが高いホスピタリティを追求して皆様の満足を追求いたします。

売却査定依頼

ピアッツァタワー上本町EASTへのお問い合わせ 空室がでた際にご連絡もさせていただきます。

ピアッツァタワー上本町EASTへのお問い合わせ

必要項目の入力

0/0
必須項目完了

確認画面へ
お進み下さい

0/0
必須項目完了

確認画面へ
お進み下さい

必須

お名前

必須

電話番号

必須

メールアドレス

任意

現在のお住まい

任意

内容

【ピアッツァタワー上本町EASTへのお問い合わせ】

利用規約及びプライバシーポリシーを必ずお読みください。左記内容に同意いただいた場合は、確認画面へお進み下さい。

未入力項目があります

※地図上に表示される物件の位置は付近住所に所在することを表すものであり、実際の物件所在地とは異なる場合がございます。

閉じる

トップへ戻る